
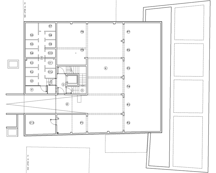
Specifikacija površina:
SPREMIŠTA - PODRUM
|
| S1 (SPREMIŠTE) |
|
3,00 m2 |
| S2 (SPREMIŠTE) |
|
3,00 m2 |
| S3 (SPREMIŠTE) |
|
2,92 m2 |
| S4 (SPREMIŠTE) |
|
2,97 m2 |
| S5 (SPREMIŠTE) |
|
2,97 m2 |
| S6 (SPREMIŠTE) |
|
5,81 m2 |
| S7 (SPREMIŠTE) |
|
3,75 m2 |
| S8 (SPREMIŠTE) |
|
2,24 m2 |
| S9 (SPREMIŠTE) |
|
2,24 m2 |
| S10 (SPREMIŠTE) |
|
2,41 m2 |
| S11 (SPREMIŠTE) |
|
2,68 m2 |
| S12 (SPREMIŠTE) |
|
2,68 m2 |
| S13 (SPREMIŠTE) |
|
16,35 m2 |
| UKUPNO |
(53,02) |
53,02 m2 |
STUBIŠTE |
| S HODNIK |
(4,60) |
|
| - STEPENICE I PODESTI |
(4,21) |
|
| UKUPNO |
(8,81) |
|
|
PARKIRALIŠNA MJESTA
- PODRUM |
| P1 PARKIRALIŠNO MJESTO |
|
15,02 m2 |
| P2 PARKIRALIŠNO MJESTO |
|
17,59 m2 |
| P3 PARKIRALIŠNO MJESTO |
|
18,00 m2 |
| P4 PARKIRALIŠNO MJESTO |
|
18,00 m2 |
| P5 PARKIRALIŠNO MJESTO |
|
18,00 m2 |
| P6 PARKIRALIŠNO MJESTO |
|
18,00 m2 |
| P7 PARKIRALIŠNO MJESTO |
|
17,40 m2 |
| P8 PARKIRALIŠNO MJESTO |
|
15,20 m2 |
| P9 PARKIRALIŠNO MJESTO |
|
19,77 m2 |
| UKUPNO |
(156,98) |
156,98 m2 |
ZAJEDNIČKE PROSTORIJE
- PODRUM |
| R RAMPA |
(15,90) |
|
| K KOMUNIKACIJA |
(104,46) |
|
| D STROJARNICA DIZALA |
(3,83) |
|
| V PROSTORIJA ZA VODOMJER |
(4,53) |
|
| Z PROLAZ SPREMIŠTA |
(12,58) |
|
| UKUPNO |
(141,30) |
|
|
| SVEUKUPNO |
(360,11) |
210,00 m2 |
|
|
Tlocrti ostalih etaža: prizemlje, prvi kat, drugi kat, treći kat, četvrti
kat, peti kat (potkrovlje). |